Schulprojekt in Bhaise


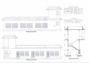
Der Bauplan der Schule

 

Bilder vom Bau der Schule


Stand der Bauarbeiten 1. Februar 2007




Stand der Bauarbeiten März 2007


Beim Empfang im April 2007


Stand der Bauarbeiten im Juni 2007

bhaise

Schulerweiterung im Oktober 2013
zurück

  Projekte von Nepalkids

Hier erfahren Sie mehr über unser Engagement in Nepal.


Home
Aktuell
Projekte
Über uns
Helfen
Links
Newsletter
Kontakt
 

bNepalkids ist Mitglied der DNG